Многие наши читатели знают, как работает по отдельности то или иное устройство. Но при сборке электрического щита часто возникают вопросы: как выбрать защитные устройства, как они должны взаимодействовать между собой и нагрузкой, в каких нормативных документах об этом говорится? Не всегда легко найти информацию о том, как собрать электрощит с нуля, учитывая все тонкости выбора элементов в совокупности.
В этой статье расскажем о нюансах сборки базовой схемы электрощита с привязкой к реальным нагрузкам.
Исходные данные
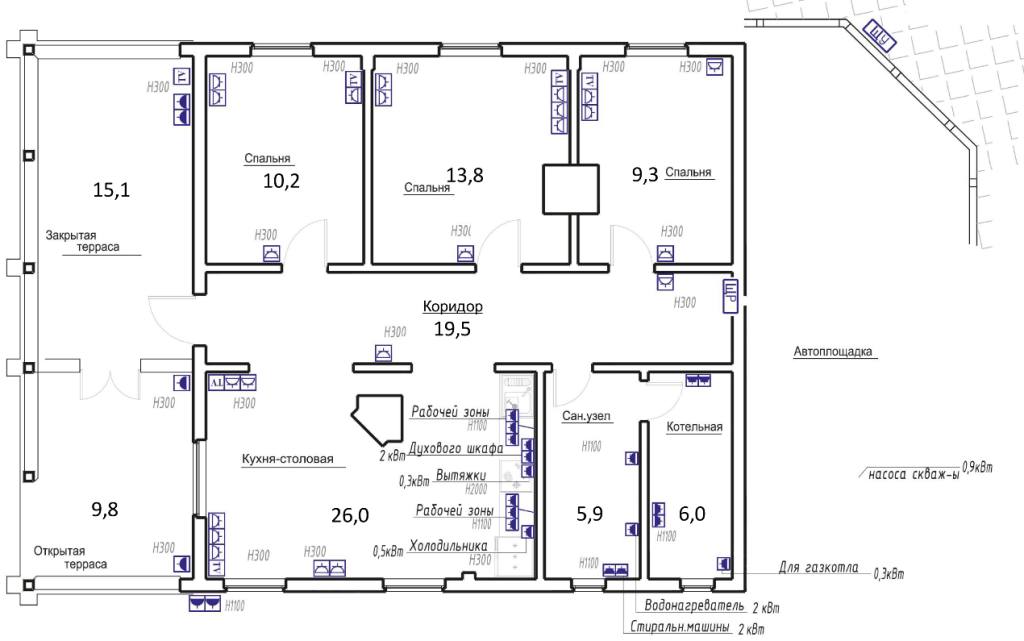
Нужно собрать бюджетный электрощит для одноэтажного коттеджа площадью 100 м2 с газовым отоплением. Ввод в дом трехфазный, выделенная мощность — 15 кВт, вводный автомат на 32 А и электросчетчик расположены на опоре.
С чего начать?
Разумеется, с технического задания. На его основе продумаем общую стратегию сборки, схему и правильную работу защит. У нас есть план помещений с расположением розеток, светильников и электрощита. Нам также известна мощность оборудования и расположение бытовой техники.

Схема расположения розеток и
Задача: выбрать кабели и защитное оборудование для щита базового уровня.
Распределение по группам
Чем руководствуемся?
СП 256.1325800.2016 «Электроустановки жилых и общественных зданий. Правила проектирования и монтажа».
СП 256, п.10.2 (распределение нагрузок по группам).
СП 256, п.15.28, п.15.28 (нормы количества розеток).
Обозначим количество розеточных групп. Как правило, электроустановочные изделия группируются применительно к
На нашем плане разграничим розеточные группы, они выделены разными цветами (см. рисунок 2).
Розеточные группы.
Объединим в одну розеточную группу нежилые помещения: открытую и закрытую террасы и коридор (зеленый цвет на схеме). Две малых спальни мы также отнесем в одну группу (красный цвет), а в большую спальню проведем отдельную группу (оранжевый цвет).
У кухни-столовой тоже будет своя линия (синий цвет). Кухню разделим на несколько розеточных групп: рабочая зона (серый цвет), холодильник (голубой цвет) и духовой шкаф с вытяжкой (бежевый цвет).
Для санузла также предусматриваем отдельную группу (выделена фиолетовым цветом), для котельной — линию на котел (желтый цвет) и линию на розетки и насос.
Итого в коттедже получилось 11 розеточных групп.
Объединение групп освещения
Наши рекомендации:
- Предусмотрите минимум две группы освещения.
- Питание осветительных приборов должно быть раздельным с розеточными группами.
- Для каждого помещения следует предусматривать два типа освещения: общее (потолочные светильники) и локальное (настенные, настольные и др.).
В нашем случае мы выделили 3 группы освещения (см. рисунок 3). Объединим в одну группу линии для потолочных светильников в нежилых зонах (на плане выделены красным цветом). В другой линии будут настенные светильники в жилых зонах и коридоре (зеленый цвет). Еще одна группа — для потолочных светильников в жилых зонах (желтый цвет на плане).

Группы освещения.
Расчет нагрузок
Чем руководствуемся?
СП 256, гл. 7.
Рассчитаем значение потребляемой мощности. Просто сложить паспортную мощность потребителей нельзя: так мы получим завышенное значение тока и лишние расходы.
Можно произвести расчет по формулам, исходя из почасового максимума потребляемой мощности с применением коэффициентов спроса и использования. Мы воспользуемся таблицей, которую разработали специалисты по техническому обучению IEK GROUP:

Нужно учитывать и коэффициент мощности (cos ϕ). Обычно эта характеристика указывается в паспорте. Для активной нагрузки, например, духового шкафа, cos ϕ равен 0,95, а у потребителей с двигателями, например, насоса, — 0,75. Поэтому, если в паспортах указана одинаковая мощность, потребляемый ток может отличаться.
Для простоты расчета можно принять cos ϕ = 0,9.
Результаты рекомендуем заносить в сводную таблицу для грамотного проектирования схемы электрощита. Ниже пример такой таблицы с разбивкой по группам. Часть информации пока скрыта.

Потребляемая мощность электрооборудования в коттедже.
Определяем суммарную расчетную мощность, она не должна превышать выделенную. Исходя из нее выбираем оборудование. Также можно посчитать суммарный ток. При дальнейшем выборе вводного автоматического выключателя необходимо учитывать, что его номинал должен быть не ниже суммарного тока.
Эти значения уже внесены в таблицу выше.
Выбор кабеля
Чем руководствуемся?
ГОСТ
ГОСТ Р
СП 256, Таблица 15.3 (выбор сечения кабеля).
При выборе кабеля в первую очередь важно значение длительно допустимого тока, который зависит от ряда внешних условий:
- Способ прокладки (открытый, в стенах, лотках, кабель-каналах и т.д.).
- Наличие рядом проходящих смежных силовых цепей.
- Температура окружающей среды.
- Наличие нелинейных искажений тока нагрузкой.
- Режимы работы нагрузки и значения пусковых токов.
Другой важный критерий — пожарная безопасность. Для большинства групп выбираем кабель ВВГнг(А) LS. Индекс LS означает, что при горении кабель выделяет минимальное количество дыма, поэтому в жилых помещениях нужно применять именно его.
На розеточные группы выбираем медный кабель сечением 3×2,5 мм2; на цепи освещения — сечением 3×1,5 мм2.
Согласно данным производителей и ГОСТ Р
К погружному насосу подключим кабель с резиновой изоляцией марки КГ 3×1,5 мм2. От уличной опоры до электрощита будет проложен вводный кабель ВВГнг(А) LS 4×10 в ПНД-трубе.
Выбранные кабели заносим в таблицу.

Выбор кабеля для организации электропроводки.
Выбор аппаратов защиты
Главное правило выбора автоматических выключателей — номинальный ток АВ должен быть больше, чем расчетный ток нагрузки, но меньше длительно допустимого тока кабеля.
Иными словами, автоматический выключатель не должен срабатывать при нормальной работе электроприборов. При этом он должен отключиться при аварийном превышении тока, чтобы не допустить перегрева кабеля.
Автоматические выключатели выбираем с учетом времятоковой характеристики (ВТХ). Для большинства бытовых нагрузок подойдут автоматы с ВТХ В и С. Для светодиодного освещения мы рекомендуем устанавливать ВТХ С, а для нагрузки с высокими пусковыми токами — D.

Выбор автоматических выключателей в зависимости от времятоковой характеристики.
Выбор автоматических выключателей по отключающей способности
Чем руководствуемся?
ГОСТ
Выбираем автомат с отключающей способностью 6 кА для ввода, а выключатели отходящих линий выберем на 4,5 кА.
Нам подойдут автоматические выключатели серии KARAT ВА47-29 и ВА47-60М.
На этом этапе наша схема приобретает такие очертания:

Подбор автоматических выключателей.
Выбор выключателей дифференциального тока (УЗО)
Чем руководствуемся?
СП 256: Приложение А, а также п.10.2 и 10.13.
Во всех розеточных группах следует использовать выключатели дифференциального тока с уставкой 30 мА. Также СП 256 (пункт А.4.15) требует устанавливать ВДТ с уставкой 10 мА на выделенную линию в душевых, ванных или санитарно-технических кабинах.
Необходимо учесть условный ток короткого замыкания
С учетом выбора ВДТ схема выглядит таким образом:

Выбор выключателей дифференциального тока (УЗО).
Применяем ВДТ серии KARAT.
Распределение нагрузки
Чем руководствуемся?
СП 256, п. 10.5.
При распределении нагрузки по фазам разница в токах наиболее и наименее нагруженных фаз не должна превышать 30% в пределах одного электрощита и 15% — в начале питающих линий.
Простым суммированием расчетных токов нагрузки на фазы подобрали оптимальное распределение:

Распределение нагрузки.
Фаза А питает газовый котел, освещение террасы, коридора, санузла и котельной, а также насос. Кроме того, фаза А идет на розетки террасы и коридора и на розетки духового шкафа и вытяжки.
Фаза В идет на две группы розеток спальни, водонагреватель и стиральную машину.
Фаза С питает настенное и потолочное освещение комнат, розетки столовой, рабочей зоны кухни и холодильник.
Выбор корпуса
Нам нужен корпус, в который поместится оборудование на 26 модулей. Мы рекомендуем оставлять место «про запас» на
На размерах щита экономить не стоит. Во-первых, свободное пространство облегчает циркуляцию воздуха. Во-вторых, не исключено, что позже вам захочется добавить другие элементы — реле напряжения, контактор, резервные группы.
Сборка
Соединяем коммутационные аппараты с помощью соединительных шин. Также нам понадобится кросс-модуль для распределения нейтральных проводников.
Нулевой проводник идет с вводного автомата на общую шину в кросс-модуле. Затем ноль идет с общей шины на выключатель дифференциального тока. После ВДТ ноль идет на отдельные шины в кросс-модуле, к ним уже будут подключаться нулевые проводники потребителей, которые защищаются ВДТ.
Подробнее о сборке щитка начального уровня смотрите в видео: